万々
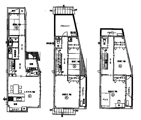
量販店や小学校も近く便利なエリア。
| お問い合わせNo | 中0178 |
|---|---|
| 所在地 | 万々 |
| 階数 | 3階 |
| 金額 | 2,880万円 |
| 建物構造 | 鉄骨3階建て |
| 土地面積 | 128.33㎡ |
| 坪数 | 38.81坪 |
| 建物面積 | 172.15㎡ |
| タイプ | 5LDK |
| 間取り詳細 | 間取り図参照 |
| 用途地域 | 第二種住居 |
| 建蔽/容積率 | 60/200% |
| 地目 | 宅地 |
| 都市計画 | 市街化区域 |
| 現況 | 居住中 |
| 交通 | 万々公民館前バス停徒歩1分 |
| 築年月 | 平成17年6月 |
| 取引態様 | 媒介 |
量販店や小学校も近く便利なエリア。
| お問い合わせNo | 中0178 |
|---|---|
| 所在地 | 万々 |
| 階数 | 3階 |
| 金額 | 2,880万円 |
| 建物構造 | 鉄骨3階建て |
| 土地面積 | 128.33㎡ |
| 坪数 | 38.81坪 |
| 建物面積 | 172.15㎡ |
| タイプ | 5LDK |
| 間取り詳細 | 間取り図参照 |
| 用途地域 | 第二種住居 |
| 建蔽/容積率 | 60/200% |
| 地目 | 宅地 |
| 都市計画 | 市街化区域 |
| 現況 | 居住中 |
| 交通 | 万々公民館前バス停徒歩1分 |
| 築年月 | 平成17年6月 |
| 取引態様 | 媒介 |